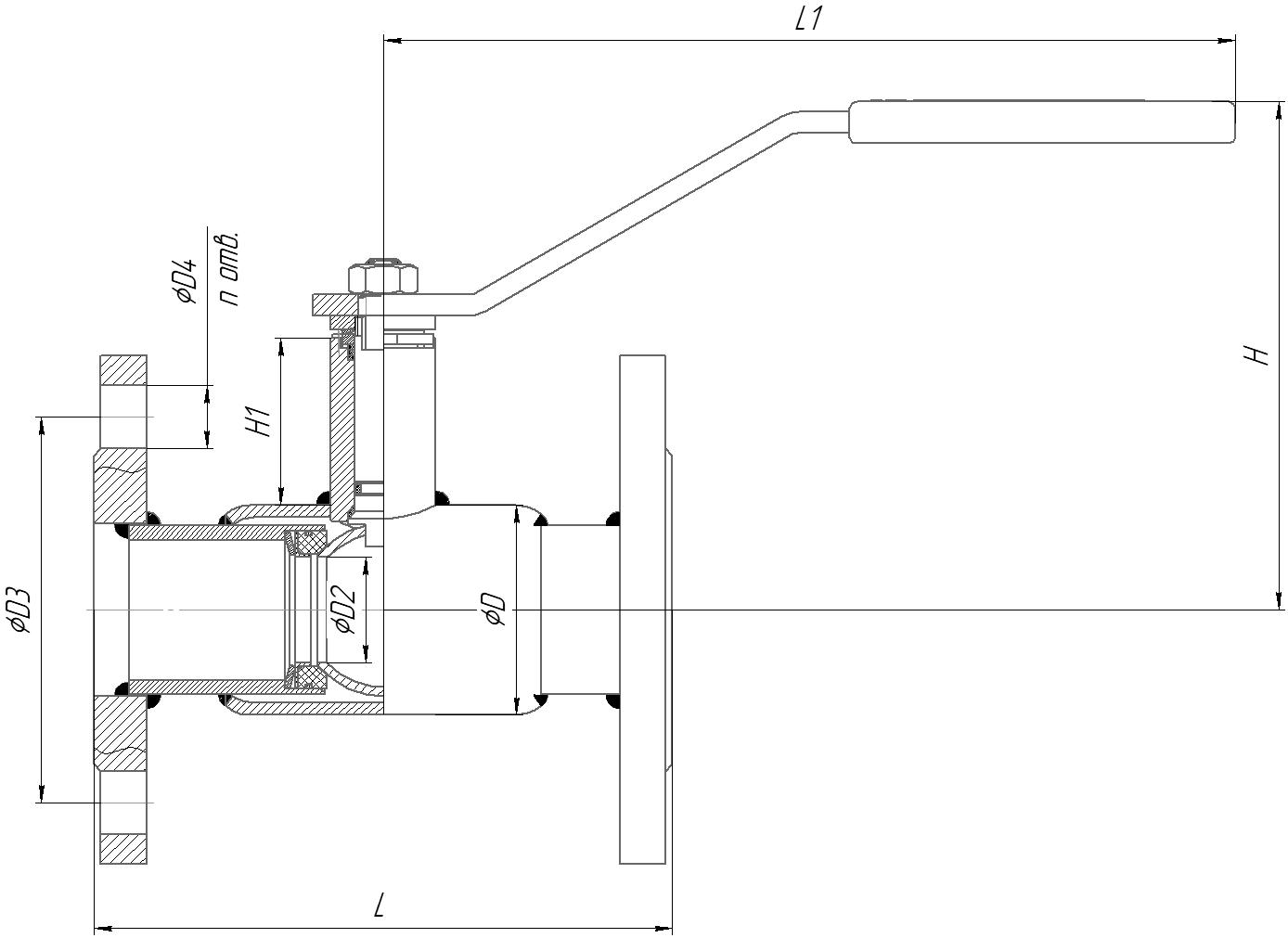
Кран шаровой стандартнопроходной 282 НП приварной
Характеристики
Макс. температура (Т) °С.: до +200 °С
Мин. температура (Т) °С.: до -40 °С (исп. У), до -60 °С (исп. ХЛ)
Класс герметичности: Класс «А» ГОСТ Р54808-2011
Срок службы: Не менее 25 лет
Гарантийный срок: 3 года или не менее 10 000 циклов
Проход: редуцированный
Присоединение: приварной
Кран шаровой стандартнопроходной 282 приварной
Тип присоединения:
приварное/приварное
Рабочая среда:
Сети централизованного теплоснабжения, нефтепродукты, горючие и смазочные материалы,
другие жидкости, свободные от абразивных загрязнений.
Модификации
| Артикул | DN | PN | L | L1 | H | H1 | D | D1 | D2 | S | |
|---|---|---|---|---|---|---|---|---|---|---|---|
| 282 20 015 | 15 | 40 | 230 | 148 | 132 | 49 | 38 | 21,3 | 10 | 2,0 | |
| 282 20 020 | 20 | 40 | 230 | 148 | 135 | 50 | 42 | 26,9 | 15 | 2,3 | |
| 282 20 025 | 25 | 40 | 230 | 148 | 138 | 50 | 48 | 33,7 | 20 | 2,6 | |
| 282 20 032 | 32 | 40 | 260 | 148 | 142 | 50 | 57 | 42,4 | 25 | 2,6 | |
| 282 20 040 | 40 | 40 | 260 | 235 | 145 | 44 | 76 | 48,3 | 32 | 2,6 | |
| 282 20 050 | 50 | 40 | 300 | 235 | 154 | 46 | 89 | 60,3 | 40 | 2,9 | |
| 282 20 065 | 65 | 25 | 300 | 235 | 159 | 42 | 108 | 76,1 | 50 | 2,9 | |
| 282 20 080 | 80 | 25 | 300 | 283 | 200 | 66 | 133 | 88,9 | 65 | 3,2 | |
| 282 20 100 | 100 | 25 | 325 | 283 | 209 | 63 | 159 | 114,3 | 80 | 3,6 |
282 приварной НП DN125 - DN500
Характеристики
Макс. температура (Т) °С.: до +200 °С
Мин. температура (Т) °С.: до -40 °С (исп. У), до -60 °С (исп. ХЛ)
Класс герметичности: Класс «А» ГОСТ Р54808-2011
Срок службы: Не менее 25 лет
Гарантийный срок: 3 года или не менее 10 000 циклов
Материалы корпуса: Сталь 20/09Г2С/12Х18Н10Т
Проход: стандартный
Присоединение: приварное
С фланцем ISO 5211 для установки привода.
Тип присоединения:
приварной/приварной
Рабочая среда:
Сети централизованного теплоснабжения, нефтепродукты, горючие и смазочные материалы,
другие жидкости, свободные от абразивных загрязнений.
Модификации
| Артикул | DN | PN | L | L1 | H | H1 | D | D1 | D2 | S | |
|---|---|---|---|---|---|---|---|---|---|---|---|
| 28220125 | 125 | 25 | 325 | 525 | 195 | 51 | 180 | 139,7 | 100 | 4,0 | |
| 28220150 | 150 | 25 | 350 | 525 | 210 | 58 | 219 | 168,3 | 125 | 4,5 | |
| 28220200 | 200 | 25 | 400 | 525 | 225 | 55 | 273 | 219,1 | 150 | 4,5 | |
| 28220250 | 250 | 25 | 530 | 1030 | 270 | 51 | 351 | 273,0 | 200 | 5,0 | |
| 28220300 | 300 | 16 | 730 | - | 329 | 98 | 426 | 323,9 | 250 | 5,6 | |
| 282 20 350 | 350 | 16/25 | 730 | - | 464 | 100 | 530 | 355.6 | 300 | 10 | |
| 28220400 | 400 | 16 | 860 | - | 373 | 98 | 530 | 406,4 | 300 | 10 | |
| 28220500 | 500 | 16 | 970 | - | 435 | 98 | 630 | 508 | 390 | 10 |
Кран шаровой стандартнопроходной 283 фланцевый
Характеристики
Макс. температура (Т) °С.: до +200 °С
Мин. температура (Т) °С.: до -40 °С (исп. У), до -60 °С (исп. ХЛ)
Класс герметичности: Класс «А» ГОСТ Р54808-2011
Срок службы: Не менее 25 лет
Гарантийный срок: 3 года или не менее 10 000 циклов
Материалы корпуса: Сталь 20/09Г2С/12Х18Н10Т
Проход: редуцированный
Тип присоединения:
фланцевое/фланцевое
Рабочая среда:
Сети централизованного теплоснабжения, нефтепродукты, горючие и смазочные материалы,
другие жидкости, свободные от абразивных загрязнений.
Модификации
| Артикул | DN | PN | L | L1 | H | H1 | D | D1 | D2 | D3 | n of holes | |
|---|---|---|---|---|---|---|---|---|---|---|---|---|
| 28320015 | 15 | 40 | 130 | 148 | 132 | 49 | 38 | 65 | 10 | 14 | 4 | |
| 28320020 | 20 | 40 | 150 | 148 | 135 | 50 | 42 | 75 | 15 | 14 | 4 | |
| 28320025 | 25 | 40 | 160 | 148 | 138 | 50 | 48 | 85 | 20 | 14 | 4 | |
| 28320032 | 32 | 40 | 180 | 148 | 142 | 50 | 57 | 100 | 25 | 18 | 4 | |
| 28320040 | 40 | 40 | 200 | 235 | 145 | 44 | 76 | 110 | 32 | 18 | 4 | |
| 28320050 | 50 | 40 | 230 | 235 | 154 | 46 | 89 | 125 | 40 | 18 | 4 | |
| 28320065 | 65 | 16 | 270 | 235 | 159 | 42 | 108 | 145 | 50 | 18 | 8 | |
| 28320080 | 80 | 16 | 280 | 283 | 200 | 66 | 133 | 160 | 65 | 18 | 8 | |
| 28320100 | 100 | 16 | 300 | 283 | 209 | 63 | 159 | 180 | 80 | 18 | 8 |
Кран шаровой стандартнопроходной 283 с фланцем для установки привода
Характеристики
Макс. температура (Т) °С.: до +200 °С
Мин. температура (Т) °С.: до -40 °С (исп. У), до -60 °С (исп. ХЛ)
Класс герметичности: Класс «А» ГОСТ Р54808-2011
Срок службы: Не менее 25 лет
Гарантийный срок: 3 года или не менее 10 000 циклов
Материалы корпуса: Сталь 20/09Г2С/12Х18Н10Т
Тип присоединения:
фланцевое/фланцевое
Рабочая среда:
Сети централизованного теплоснабжения, нефтепродукты, горючие и смазочные материалы,
другие жидкости, свободные от абразивных загрязнений.
Краны DN700 - 1400 изготавливаются под заказ. Информация по кранам DN700 - 1400 предоставляется по запросу.
Модификации
| Артикул | DN | PN | L | L1 | H | H1 | D | D1 | D2 | D3 | n of holes | |
|---|---|---|---|---|---|---|---|---|---|---|---|---|
| 28320125 | 125 | 16 | 325 | 525 | 195 | 51 | 180 | 210 | 100 | 18 | 8 | |
| 28320150 | 150 | 16 | 350 | 525 | 210 | 58 | 219 | 240 | 125 | 22 | 8 | |
| 28320200 | 200 | 16 | 400 | 525 | 225 | 55 | 273 | 295 | 150 | 22 | 12 | |
| 28320250 | 250 | 16 | 500 | 1030 | 270 | 51 | 351 | 355 | 200 | 26 | 12 | |
| 28320300 | 300 | 16 | 750 | - | 329 | 98 | 426 | 410 | 250 | 26 | 12 | |
| 28320400 | 400 | 16 | 880 | - | 373 | 98 | 530 | 515 | 300 | 30 | 16 | |
| 28320500 | 500 | 16 | 990 | - | 435 | 98 | 630 | 620 | 390 | 33 | 20 |
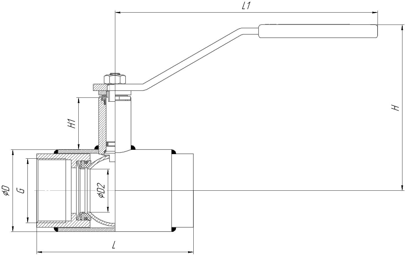
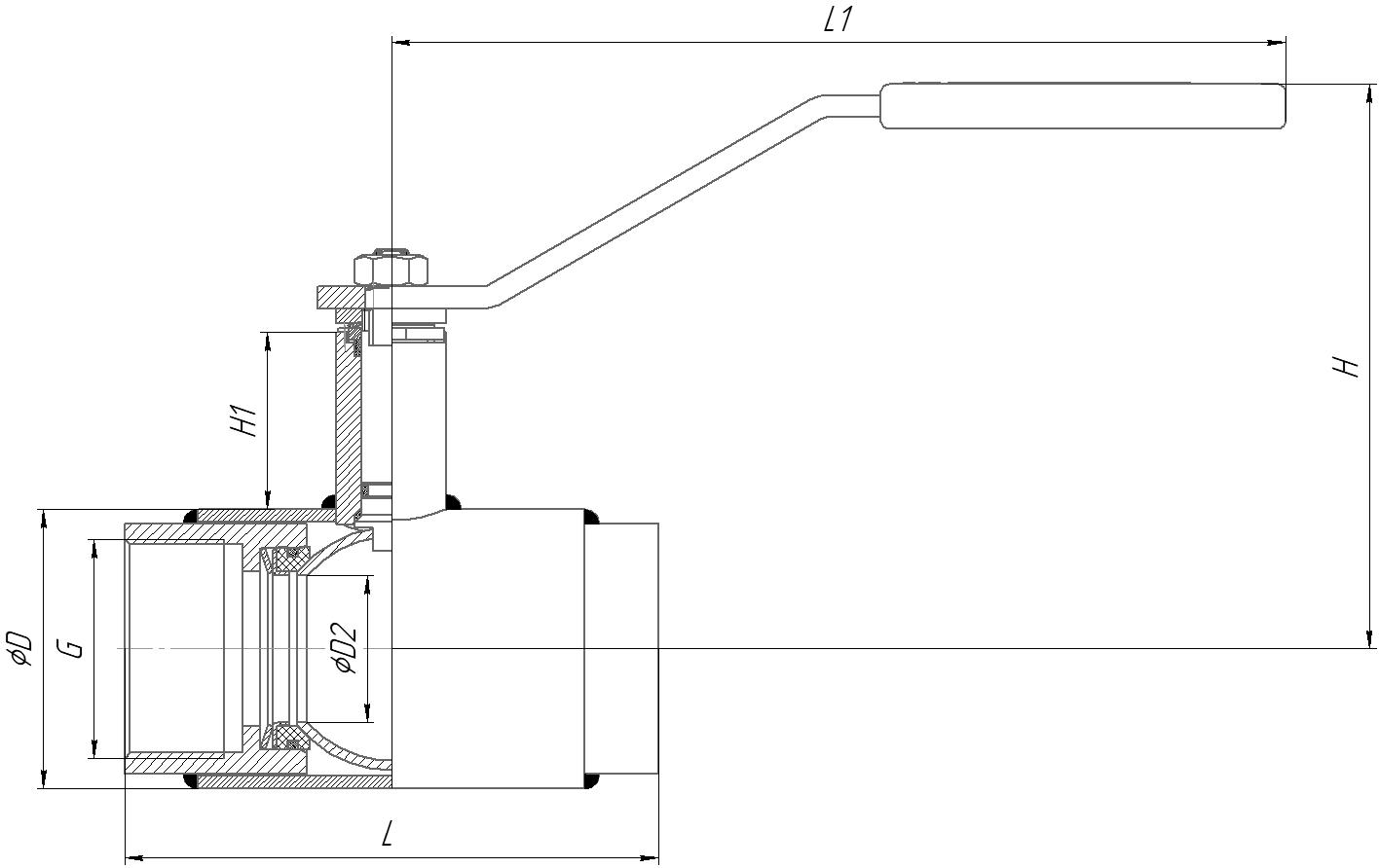
Кран шаровой стандартнопроходной 280 муфтовый
Характеристики
Макс. температура (Т) °С.: до +200 °С
Мин. температура (Т) °С.: до -40 °С (исп. У), до -60 °С (исп. ХЛ)
Класс герметичности: Класс «А» ГОСТ Р54808-2011
Срок службы: Не менее 25 лет
Гарантийный срок: 3 года или не менее 10 000 циклов
Материалы корпуса: Сталь 20/09Г2С/12Х18Н10Т
Проход: редуцированный
Кран шаровой стандартнопроходной 280 муфтовый
Тип присоединения:
резьбовое/резьбовое
Рабочая среда:
Сети централизованного теплоснабжения, нефтепродукты, горючие и смазочные материалы,
другие жидкости, свободные от абразивных загрязнений.
Модификации
| Артикул | DN | PN | L | L1 | H | H1 | D | G | D2 | Вес,кг. | |
|---|---|---|---|---|---|---|---|---|---|---|---|
| 28020015 | 15 | 40 | 100 | 158,8 | 70 | 15,5 | 42 | 1/2 | 10 | 0,73 | |
| 28020020 | 20 | 40 | 100 | 158,8 | 72,6 | 18,1 | 42 | 3/4 | 15 | 0,70 | |
| 28020025 | 25 | 40 | 100 | 158,8 | 74,6 | 17,1 | 48 | 1 | 18 | 0,92 | |
| 28020032 | 32 | 40 | 100 | 158,8 | 79 | 17 | 57 | 11/4 | 24 | 1,17 | |
| 28020040 | 40 | 40 | 120 | 243 | 129 | 37,5 | 60 | 11/2 | 30 | 1,60 | |
| 28020050 | 50 | 40 | 145 | 243 | 137,5 | 38 | 76 | 2 | 40 | 2,45 | |
| 28020065 | 65 | 25 | 190 | 243 | 143,5 | 37,5 | 89 | 2 1/2 | 48 | 3,95 | |
| 28020080 | 80 | 25 | 200 | 277,6 | 174,5 | 56 | 114 | 3 | 63 | 5,76 | |
| 28020100 | 100 | 25 | 240 | 277,6 | 184,1 | 56,1 | 133 | 4 | 75 | 10,79 |
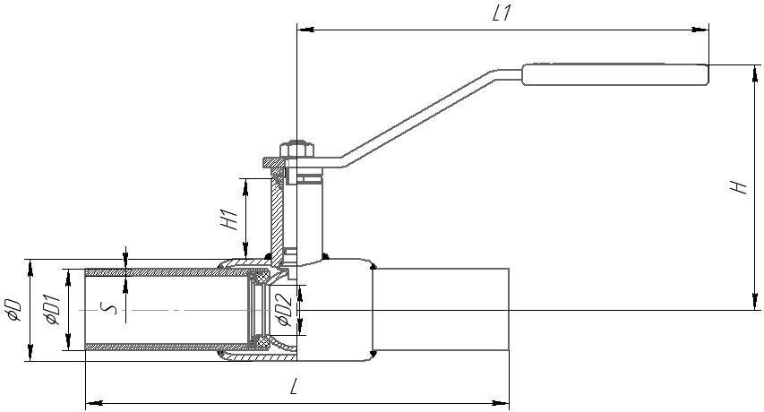
Кран шаровой стандартнопроходной 281 НП приварной-резьбовой
Характеристики
Макс. температура (Т) °С.: до +200 °С
Мин. температура (Т) °С.: до -40 °С (исп. У), до -60 °С (исп. ХЛ)
Класс герметичности: Класс «А» ГОСТ Р54808-2011
Срок службы: Не менее 25 лет
Гарантийный срок: 3 года или не менее 10 000 циклов
Материалы корпуса: Сталь 20/09Г2С/12Х18Н10Т
Проход: редуцированный
Тип присоединения:
приварной/резьбовое
Рабочая среда:
Сети централизованного теплоснабжения, нефтепродукты, горючие и смазочные материалы,
другие жидкости, свободные от абразивных загрязнений.
Модификации
| Артикул | DN | PN | L | L1 | H | H1 | D | D1 | D2 | S | R | |
|---|---|---|---|---|---|---|---|---|---|---|---|---|
| 281 20 015 | 15 | 40 | 183 | 148 | 132 | 49 | 38 | 21,3 | 10 | 2,0 | 1/2 | |
| 28120020 | 20 | 40 | 183 | 148 | 135 | 50 | 42 | 26,9 | 15 | 2,3 | 3/4 | |
| 28120025 | 25 | 40 | 183 | 148 | 138 | 50 | 48 | 33,7 | 20 | 2,6 | 1 | |
| 28120032 | 32 | 40 | 198 | 148 | 142 | 50 | 57 | 42,4 | 25 | 2,6 | 1 1/4 | |
| 28120040 | 40 | 40 | 208 | 235 | 145 | 44 | 76 | 48,3 | 32 | 2,6 | 1 1/2 | |
| 28120050 | 50 | 40 | 235 | 235 | 154 | 46 | 89 | 60,3 | 40 | 2,9 | 2 | |
| 28120065 | 65 | 25 | 245 | 235 | 159 | 42 | 108 | 76,1 | 50 | 2,9 | 2 1/2 | |
| 28120080 | 80 | 25 | 250 | 283 | 200 | 66 | 133 | 88,9 | 65 | 3,2 | 3 | |
| 28120100 | 100 | 25 | 283 | 283 | 209 | 63 | 159 | 114,3 | 80 | 3,6 | 4 |
Кран шаровой стандартнопроходной 285 штуцерно-ниппельный
Характеристики
Макс. температура (Т) °С.: до +200 °С
Мин. температура (Т) °С.: до -40 °С (исп. У), до -60 °С (исп. ХЛ)
Класс герметичности: Класс «А» ГОСТ 9544-2015
Срок службы: Не менее 25 лет
Гарантийный срок: 3 года или не менее 10 000 циклов
Материалы корпуса: Сталь 20/09Г2С/12Х18Н10Т
Тип присоединения:
штуцерно-ниппельный
Рабочая среда:
Теплосетевая вода, нефтепродукты, ГСМ и другие рабочие среды,
неагрессивные для материалов деталей крана.
Модификации
| Артикул | DN | PN | L | L1 | H | H1 | D | D1 | D2 | Вес,кг | |
|---|---|---|---|---|---|---|---|---|---|---|---|
| 28520015 | 15 | 40 | 220 | 158,8 | 70 | 15,5 | 42 | 21 | 10 | 1,11 | |
| 28520020 | 20 | 40 | 230 | 158,8 | 72,6 | 18,1 | 42 | 27 | 15 | 1,6 | |
| 28520025 | 25 | 40 | 250 | 158,8 | 74,6 | 17,1 | 48 | 33,5 | 18 | 1,94 | |
| 28520032 | 32 | 40 | 260 | 158,8 | 79 | 17 | 57 | 38 | 24 | 2,49 |
Кран шаровой стандартнопроходной 289 комбинированный
Характеристики
Макс. температура (Т) °С.: до +200 °С
Мин. температура (Т) °С.: до -40 °С (исп. У), до -60 °С (исп. ХЛ)
Класс герметичности: Класс «А» ГОСТ Р54808-2011
Срок службы: Не менее 25 лет
Гарантийный срок: 3 года или не менее 10 000 циклов
Материалы корпуса: Сталь 20/09Г2С/12Х18Н10Т
Проход: редуцированный
Тип присоединения:
фланцевый/приварной
Рабочая среда:
Сети централизованного теплоснабжения, нефтепродукты, горючие и смазочные материалы,
другие жидкости, свободные от абразивных загрязнений.
Модификации
| Артикул | DN | PN | L | L1 | H | H1 | S | d* | D | D1 | D2 | D3 | n of holes | |
|---|---|---|---|---|---|---|---|---|---|---|---|---|---|---|
| 28320015 | 15 | 40 | 180 | 148 | 132 | 49 | 2,0 | 2,0 | 38 | 65 | 10 | 14 | 4 | |
| 28320020 | 20 | 40 | 190 | 148 | 135 | 50 | 2,3 | 2,3 | 42 | 75 | 15 | 14 | 4 | |
| 28320025 | 25 | 40 | 195 | 148 | 138 | 50 | 2,6 | 2,6 | 48 | 85 | 20 | 14 | 4 | |
| 28320032 | 32 | 40 | 220 | 148 | 142 | 50 | 2,6 | 2,6 | 57 | 100 | 25 | 18 | 4 | |
| 28320040 | 40 | 40 | 230 | 235 | 145 | 44 | 2,6 | 2,6 | 76 | 110 | 32 | 18 | 4 | |
| 28320050 | 50 | 40 | 265 | 235 | 154 | 46 | 2,9 | 2,9 | 89 | 125 | 40 | 18 | 4 | |
| 28320065 | 65 | 16 | 285 | 235 | 159 | 42 | 2,9 | 2,9 | 108 | 145 | 50 | 18 | 8 | |
| 28320080 | 80 | 16 | 290 | 283 | 200 | 66 | 3,2 | 3,2 | 133 | 160 | 65 | 18 | 8 | |
| 28320100 | 100 | 16 | 313 | 283 | 209 | 63 | 3,6 | 3,6 | 159 | 180 | 80 | 18 | 8 |
Кран шаровой стандартнопроходной 282 приварное/приварное
Характеристики
Макс. температура (Т) °С.: до +200 °С
Мин. температура (Т) °С.: до -40 °С (исп. У), до -60 °С (исп. ХЛ)
Класс герметичности: Класс «А» ГОСТ 9544-2015
Срок службы: Не менее 25 лет
Гарантийный срок: 3 года
Материалы корпуса: Сталь 20/09Г2С/12Х18Н10Т
ПаспортТип присоединения:
приварное/приварное
Рабочая среда:
Теплосетевая вода, нефтепродукты, ГСМ и другие рабочие среды, неагрессивные для материалов деталей крана.
*Краны DN700 - 1400 изготавливаются под заказ. Информация по кранам DN700 - 1400 предоставляется по запросу.
Модификации
| Артикул | DN | PN | L | L1 | H | H1 | D | D1 | D2 | S | Вес, кг. | |
|---|---|---|---|---|---|---|---|---|---|---|---|---|
| 28220015 | 15 | 40 | 200 | 158,8 | 70 | 15,5 | 42 | 22 | 10 | 2,8 | 0,66 | |
| 28220020 | 20 | 40 | 200 | 158,8 | 72,6 | 18,1 | 42 | 27 | 15 | 2,8 | 0,76 | |
| 28220025 | 25 | 40 | 230 | 158,8 | 74,6 | 17,1 | 48 | 32 | 18 | 3,2 | 1,05 | |
| 28220032 | 32 | 40 | 230 | 158,8 | 79 | 17 | 57 | 42 | 24 | 3,2 | 1,27 | |
| 28220040 | 40 | 40 | 250 | 243 | 129 | 37,5 | 60 | 48 | 30 | 3,5 | 1,95 | |
| 28220050 | 50 | 40 | 270 | 243 | 137,5 | 38 | 76 | 57 | 40 | 3,5 | 2,47 | |
| 28220065 | 65 | 25 | 280 | 243 | 143,5 | 37,5 | 89 | 76 | 48 | 3,5 | 3,32 | |
| 28220080 | 80 | 25 | 280 | 277,6 | 174,5 | 56 | 114 | 89 | 63 | 4 | 4,75 | |
| 28220100 | 100 | 25 | 300 | 277,6 | 184,1 | 56,1 | 133 | 108 | 75 | 5 | 6,75 | |
| 28220125 | 125 | 25 | 330 | 526 | 184,3 | 61,3 | 180 | 133 | 100 | 5 | 13,72 | |
| 28220150 | 150 | 25 | 360 | 526 | 200,8 | 58,3 | 219 | 159 | 125 | 6 | 18,31 | |
| 28220200 | 200 | 25 | 430 | 526 | 221 | 51,5 | 273 | 219 | 148 | 8 | 30,99 | |
| 28220250 | 250 | 25 | 510 | 1019,5 | 275,6 | 61,8 | 351 | 273 | 200 | 8 | 57,72 | |
| 28220300 | 300 | 16/25 | 730 | - | 414 | 101 | 426 | 325 | 240 | 10 | 122,65 | |
| 28220350 | 350 | 16/25 | 730 | - | 464 | 100 | 530 | 377 | 300 | 10 | 235,0 | |
| 28220400 | 400 | 16/25 | 860 | - | 464 | 100 | 530 | 426 | 300 | 10 | 285,0 | |
| 28220500 | 500 | 16/25 | 970 | - | 561 | 103 | 630 | 530 | 390 | 10 | 455,0 | |
| 28220600 | 600 | 16/25 | 1143 | - | 664 | 104 | 820 | 630 | 500 | 10 | 852,5 | |
| 28220700 | 700* | 16/25 | 1150 | - | - | 88 | 970 | 720 | 600 | 13 | 1182 | |
| 28220800 | 800* | 16/25 | 1346 | - | - | 132 | 1120 | 820 | 700 | 13 | 2595 | |
| 282201000 | 1000* | 16/25 | 1524 | - | - | 82 | 1220 | 1020 | 780 | 15 | 2795 | |
| 282201200 | 1200* | 16/25 | 1650 | - | - | 82 | 1420 | 1220 | 1000 | 15 | 3852 | |
| 282201400 | 1400* | 16/25 | 1800 | - | - | 126 | 1620 | 1420 | 1200 | 15 | 4352 |
Кран шаровой стандартнопроходной 282, с фланцем для установки привода
Характеристики
Макс. температура (Т) °С.: до +200 °С
Мин. температура (Т) °С.: до -40 °С (исп. У), до -60 °С (исп. ХЛ)
Класс герметичности: Класс «А» ГОСТ 9544-2015
Срок службы: Не менее 25 лет
Гарантийный срок: 3 года или 10 000 циклов
Материалы корпуса: Сталь 20/09Г2С/12Х18Н10Т
Тип присоединения:
приварное/приварное
Рабочая среда:
Теплосетевая вода, нефтепродукты, ГСМ и другие рабочие среды, неагрессивные для материалов
деталей крана.
*Краны DN700 - 1400 изготавливаются под заказ. Информация по кранам DN700 - 1400 предоставляется по запросу
Модификации
| Артикул | DN | PN | L | L1 | H | H1 | D | D1 | D2 | S | Вес | |
|---|---|---|---|---|---|---|---|---|---|---|---|---|
| 28220125 | 125 | 25 | 330 | 525 | 187 | 50 | 180 | 133 | 100 | 5 | 14,30 | |
| 28220150 | 150 | 25 | 360 | 525 | 203 | 47 | 219 | 159 | 125 | 6 | 19,05 | |
| 28220200 | 200 | 25 | 430 | 525 | 228 | 45 | 273 | 219 | 148 | 8 | 31,75 | |
| 28220250 | 250 | 25 | 510 | 1030 | 273 | 51 | 351 | 273 | 200 | 8 | 60,25 | |
| 28220300 | 300 | 16/25 | 730 | - | 414 | 101 | 426 | 325 | 240 | 10 | 122,65 | |
| 28220350 | 350 | 16/25 | 730 | - | 464 | 100 | 530 | 377 | 300 | 10 | 235,00 | |
| 28220400 | 400 | 16/25 | 860 | - | 464 | 100 | 530 | 426 | 300 | 10 | 285,00 | |
| 28220500 | 500 | 16/25 | 970 | - | 561 | 103 | 630 | 530 | 390 | 10 | 455,00 | |
| 28220700 | 700* | 16/25 | 1150 | - | - | 88 | 970 | 720 | 600 | 13 | 1182 | |
| 28220800 | 800* | 16/25 | 1346 | - | - | 132 | 1120 | 820 | 700 | 13 | 2595 | |
| 282201000 | 1000* | 16/25 | 1524 | - | - | 82 | 1220 | 1020 | 780 | 15 | 2795 | |
| 282201200 | 1200* | 16/25 | 1650 | - | - | 82 | 1420 | 1220 | 1000 | 15 | 3852 | |
| 282201400 | 1400* | 16/25 | 1800 | - | - | 126 | 1620 | 1420 | 1200 | 15 | 4352 |
Кран шаровой стандартнопроходной 280 муфтовый
Характеристики
Макс. температура (Т) °С.: до +200 °С
Мин. температура (Т) °С.: до -40 °С (исп. У), до -60 °С (исп. ХЛ)
Класс герметичности: Класс «А» ГОСТ Р54808-2011
Срок службы: Не менее 25 лет*
Гарантийный срок: 3 года или не менее 10 000 циклов*
Материалы корпуса: Сталь 20/09Г2С/12Х18Н10Т
Тип присоединения:
резьбовое/резьбовое
Рабочая среда:
Теплосетевая вода, нефтепродукты, ГСМ и другие рабочие среды, неагрессивные для материалов деталей крана.
Модификации
| Артикул | DN | PN | L | L1 | H | H1 | D | R | D2 | Вес | |
|---|---|---|---|---|---|---|---|---|---|---|---|
| 28020015 | 15 | 40 | 100 | 158,8 | 70 | 15,5 | 42 | 1/2 | 10 | 0,73 | |
| 28020020 | 20 | 40 | 100 | 158,8 | 72,6 | 18,1 | 42 | 3/4 | 15 | 0,70 | |
| 28020025 | 25 | 40 | 100 | 158,8 | 74,6 | 17 | 48 | 1 | 18 | 0,92 | |
| 28020032 | 32 | 40 | 100 | 158,8 | 79 | 17 | 57 | 1 1/4 | 24 | 1,17 | |
| 28020040 | 40 | 40 | 120 | 243 | 129 | 37,5 | 60 | 1 1/2 | 30 | 1,6 | |
| 28020050 | 50 | 40 | 145 | 243 | 137,5 | 38 | 76 | 2 | 40 | 2,49 | |
| 28020065 | 65 | 25 | 190 | 243 | 143,5 | 37,5 | 89 | 2 1/2 | 48 | 3,95 | |
| 28020080 | 80 | 25 | 200 | 277,6 | 174,5 | 56 | 114 | 3 | 63 | 5,76 | |
| 28020100 | 100 | 25 | 240 | 277,6 | 184,1 | 56,1 | 133 | 4 | 75 | 10,79 |
Кран шаровой стандартнопроходной 283 фланцевый
Характеристики
Макс. температура (Т) °С.: до +200 °С
Мин. температура (Т) °С.: (Т): до -40 °С (исп. У), до -60 °С (исп. ХЛ)
Класс герметичности: Класс «А» ГОСТ Р54808-2011
Срок службы: Не менее 25 лет*
Гарантийный срок: 3 года
Материалы корпуса: Сталь 20/09Г2С/12Х18Н10Т
Тип присоединения:
фланцевое/фланцевое
Рабочая среда:
Теплосетевая вода, нефтепродукты, ГСМ и другие рабочие среды, неагрессивные для материалов деталей крана.
Краны DN700 - 1400 изготавливаются под заказ. Информация по кранам DN700 - 1400 предоставляется по запросу.
Модификации
| Артикул | DN | PN | L | L1 | H | H1 | D | D2 | D3 | D4 | n отв. | Вес, кг | |
|---|---|---|---|---|---|---|---|---|---|---|---|---|---|
| 28320015 | 15 | 40 | 130 | 158,8 | 70 | 15,5 | 42 | 10 | 65 | 14 | 4 | 1,62 | |
| 28320020 | 20 | 40 | 150 | 158,8 | 72,6 | 18,1 | 42 | 15 | 75 | 14 | 4 | 2,13 | |
| 28320025 | 25 | 40 | 160 | 158,8 | 74,6 | 17,1 | 48 | 18 | 85 | 14 | 4 | 2,61 | |
| 28320032 | 32 | 40 | 180 | 158,8 | 79 | 17 | 57 | 24 | 100 | 18 | 4 | 3,59 | |
| 28320040 | 40 | 40 | 200 | 243 | 129 | 37,5 | 60 | 30 | 110 | 18 | 4 | 4,6 | |
| 28320050 | 50 | 40 | 230 | 243 | 137,5 | 38 | 76 | 40 | 125 | 18 | 4 | 6,13 | |
| 28320065 | 65 | 16 | 270 | 243 | 143,5 | 37,5 | 89 | 48 | 145 | 18 | 4 | 8,49 | |
| 28320080 | 80 | 16 | 280 | 277,6 | 174,5 | 56 | 114 | 63 | 160 | 18 | 4 | 10,85 | |
| 28320100 | 100 | 16 | 300 | 277,6 | 184,1 | 56,1 | 133 | 75 | 180 | 18 | 8 | 14,27 | |
| 28320125 | 125 | 16 | 350 | 526 | 184,3 | 61,3 | 180 | 100 | 210 | 18 | 8 | 24,37 | |
| 28320150iso | 150 | 16 | 380 | 526 | 200,8 | 58,3 | 219 | 125 | 240 | 22 | 8 | 30,77 | |
| 28320200iso | 200 | 16 | 450 | 526 | 221 | 46,5 | 273 | 148 | 295 | 22 | 12 | 50 | |
| 28320250iso | 250 | 16 | 530 | 1019,5 | 275,6 | 61,8 | 351 | 200 | 355 | 26 | 12 | 86,53 | |
| 28320300iso | 300 | 16 | 750 | - | 414 | 101 | 426 | 240 | 410 | 26 | 12 | 161,00 | |
| 28320350iso | 350 | 16 | 750 | - | 464 | 100 | 530 | 300 | 470 | 26 | 16 | 280,00 | |
| 28320400iso | 400 | 16 | 880 | - | 464 | 100 | 530 | 300 | 525 | 30 | 16 | 355,00 | |
| 28320500iso | 500 | 16 | 990 | - | 561 | 103 | 630 | 390 | 650 | 33 | 20 | 615,00 | |
| 28320600iso | 600 | 16 | 1173 | - | 664 | 104 | 820 | 500 | 770 | 39 | 20 | 1012,00 |
Кран шаровой стандартнопроходной 283 с фланцем для установки привода
Характеристики
Макс. температура (Т) °С.: до +200 °С
Мин. температура (Т) °С.: до -40 °С (исп. У), до -60 °С (исп. ХЛ)
Класс герметичности: Класс «А» ГОСТ 9544-2015
Срок службы: Не менее 25 лет
Гарантийный срок: 3 года или не менее 10 000 циклов
Материалы корпуса: Сталь 20/09Г2С/12Х18Н10Т
Тип присоединения:
фланцевое/фланцевое
Рабочая среда:
Теплосетевая вода, нефтепродукты, ГСМ и другие рабочие среды, неагрессивные для материалов деталей крана.
Краны DN700 - 1400 изготавливаются под заказ. Информация по кранам DN700 - 1400 предоставляется по запросу.
Модификации
| Артикул | DN | PN | L | L1 | H | H1 | D | D1 | D2 | D3 | N OF HOLES | Вес | |
|---|---|---|---|---|---|---|---|---|---|---|---|---|---|
| 28320125 | 125 | 16 | 350 | 525 | 187 | 50 | 180 | 210 | 100 | 18 | 8 | 25,45 | |
| 28320150 | 150 | 16 | 380 | 525 | 203 | 48 | 219 | 240 | 125 | 22 | 8 | 34,00 | |
| 28320200 | 200 | 16 | 450 | 525 | 228 | 45 | 273 | 295 | 148 | 22 | 12 | 51,10 | |
| 28320250 | 250 | 16 | 530 | 1030 | 273 | 51 | 351 | 355 | 200 | 26 | 12 | 92,00 | |
| 28320300 | 300 | 16 | 750 | - | 414 | 101 | 426 | 410 | 240 | 26 | 12 | 161,00 | |
| 28320350 | 350 | 16 | 750 | - | 464 | 100 | 530 | 470 | 300 | 26 | 16 | 280,00 | |
| 28320400 | 400 | 16 | 880 | - | 464 | 100 | 530 | 525 | 300 | 30 | 16 | 355,00 | |
| 28320500 | 500 | 16 | 990 | - | 561 | 103 | 630 | 650 | 390 | 33 | 20 | 615,00 | |
| 28320600 | 600 | 16 | 1173 | - | 664 | 104 | 820 | 770 | 500 | 39 | 20 | 950 |
Кран шаровой стандартнопроходной 284 фланцевое (PN 25) / фланцевое (PN 25)
Характеристики
Макс. температура (Т) °С.: до +200 °С
Мин. температура (Т) °С.: до -40 °С (исп. У), до -60 °С (исп. ХЛ)
Класс герметичности: Класс «А» ГОСТ Р54808-2011
Срок службы: Не менее 25 лет*
Гарантийный срок: 3 года или не менее 10 000 циклов
Материалы корпуса: Сталь 20/09Г2С/12Х18Н10Т
Тип присоединения:
фланцевое (PN 25) / фланцевое (PN 25)
Рабочая среда:
Теплосетевая вода, нефтепродукты, ГСМ и другие рабочие среды, неагрессивные для материалов деталей крана.
Модификации
| Артикул | DN | PN | L | L1 | H | H1 | D | D2 | D3 | D4 | n oтв. | Вес, кг | |
|---|---|---|---|---|---|---|---|---|---|---|---|---|---|
| 28420065 | 65 | 25 | 270 | 243 | 143,5 | 37,5 | 89 | 48 | 145 | 18 | 8 | 8,49 | |
| 28420080 | 80 | 25 | 280 | 277,6 | 174,5 | 56 | 114 | 63 | 160 | 18 | 8 | 10,85 | |
| 284200100 | 100 | 25 | 300 | 277,6 | 184,1 | 56,1 | 133 | 75 | 190 | 22 | 8 | 16,47 | |
| 284200125 | 125 | 25 | 350 | 526 | 184,3 | 61,3 | 180 | 100 | 220 | 26 | 8 | 29,37 | |
| 28420150iso | 150 | 25 | 380 | 526 | 200,8 | 58,3 | 219 | 125 | 250 | 26 | 8 | 37,77 | |
| 28420200iso | 200 | 25 | 450 | 526 | 221 | 46,5 | 273 | 148 | 310 | 26 | 12 | 56,4 | |
| 28420250iso | 250 | 25 | 530 | 1019,5 | 275,6 | 61,8 | 351 | 200 | 370 | 30 | 12 | 95,33 | |
| 28420300iso | 300 | 25 | 750 | - | 414 | 101 | 426 | 240 | 430 | 30 | 16 | 163,00 | |
| 28420350iso | 350 | 25 | 750 | - | 464 | 100 | 530 | 300 | 490 | 33 | 16 | 282,00 | |
| 28420400iso | 400 | 25 | 880 | - | 464 | 100 | 530 | 300 | 550 | 33 | 16 | 357,00 | |
| 28420500iso | 500 | 25 | 990 | - | 561 | 103 | 630 | 390 | 660 | 39 | 20 | 617,00 | |
| 28420600iso | 600 | 25 | 1173 | - | 664 | 104 | 820 | 500 | 770 | 39 | 20 | 1035,00 |
Кран шаровой стандартнопроходной 284 с фланцем для установки привода
Характеристики
Макс. температура (Т) °С.: до +200 °С
Мин. температура (Т) °С.: до -40 °С (исп. У), до -60 °С (исп. ХЛ)
Класс герметичности: Класс «А» ГОСТ Р54808-2011
Срок службы: Не менее 25 лет
Гарантийный срок: 3 года или не менее 10 000 циклов
Материалы корпуса: Сталь 20/09Г2С/12Х18Н10Т
Тип присоединения:
фланцевое/фланцевое
Рабочая среда:
Теплосетевая вода, нефтепродукты, ГСМ и другие рабочие среды, неагрессивные для материалов деталей крана.
Модификации
| Артикул | DN | PN | L | L1 | H | H1 | D | D2 | D3 | D4 | n отв. | Вес,кг | |
|---|---|---|---|---|---|---|---|---|---|---|---|---|---|
| 28420150 | 150 | 25 | 380 | 526 | 200,8 | 58,3 | 219 | 125 | 250 | 26 | 8 | 37,77 | |
| 28420200 | 200 | 25 | 450 | 525 | 221 | 46,5 | 273 | 148 | 310 | 26 | 12 | 56,4 | |
| 28420250 | 250 | 25 | 530 | 1019,5 | 275,6 | 61,8 | 351 | 200 | 370 | 30 | 12 | 95,33 | |
| 28420300 | 300 | 25 | 750 | - | 414 | 101 | 426 | 240 | 430 | 30 | 16 | 163,00 | |
| 28420350 | 350 | 25 | 750 | - | 464 | 100 | 530 | 300 | 490 | 33 | 16 | 282,00 | |
| 28420400 | 400 | 25 | 880 | - | 464 | 100 | 530 | 300 | 550 | 33 | 16 | 357,00 | |
| 28420500 | 500 | 25 | 990 | - | 561 | 103 | 630 | 390 | 660 | 39 | 20 | 617,00 | |
| 28420600 | 600 | 25 | 1173 | - | 664 | 104 | 820 | 500 | 770 | 39 | 20 | 1035,00 |
Кран шаровой стандартнопроходной 286 под задвижку
Характеристики
Макс. температура (Т) °С.: до +200 °С
Мин. температура (Т) °С.: до -40 °С (исп. У), до -60 °С (исп. ХЛ)
Класс герметичности: Класс «А» ГОСТ 9544-2015
Срок службы: Не менее 25 лет*
Гарантийный срок: 3 года или не менее 10 000 циклов
Материалы корпуса: Сталь 20/09Г2С/12Х18Н10Т
Тип присоединения:
фланцевый/фланцевый
Рабочая среда:
теплосетевая вода, нефтепродукты, ГСМ и другие рабочие среды, неагрессивные для материалов деталей крана.
Модификации
| Артикул | DN | PN | L | L1 | H | H1 | D | D2 | D3 | D4 | n отв. | Вес, кг | |
|---|---|---|---|---|---|---|---|---|---|---|---|---|---|
| 28620015 | 15 | 40 | 120 | 158,8 | 70 | 15,5 | 42 | 10 | 65 | 14 | 4 | 1,74 | |
| 28620020 | 20 | 40 | 120 | 158,8 | 72,6 | 18,1 | 42 | 15 | 75 | 14 | 4 | 2,08 | |
| 28620025 | 25 | 40 | 140 | 158,8 | 74,6 | 17,1 | 48 | 18 | 85 | 14 | 4 | 2,56 | |
| 28620032 | 32 | 40 | 140 | 158,8 | 79 | 17 | 57 | 24 | 100 | 18 | 4 | 3,47 | |
| 28620040 | 40 | 40 | 165 | 243 | 129 | 37,5 | 60 | 30 | 110 | 18 | 4 | 4,47 | |
| 28620050 | 50 | 40 | 180 | 243 | 137,5 | 38 | 76 | 40 | 125 | 18 | 4 | 5,90 | |
| 28620065 | 65 | 16 | 200 | 243 | 143,5 | 37,5 | 89 | 48 | 145 | 18 | 4 | 8,05 | |
| 28620080 | 80 | 16 | 210 | 277,6 | 174,5 | 56 | 114 | 63 | 160 | 18 | 4 | 10,24 | |
| 286200100 | 100 | 16 | 230 | 277,6 | 184,1 | 56,1 | 133 | 75 | 180 | 18 | 8 | 13,35 | |
| 286200125 | 125 | 16 | 254 | 526 | 184,3 | 61,3 | 180 | 100 | 210 | 18 | 8 | 21,33 | |
| 286200150 | 150 | 16 | 280 | 526 | 200,8 | 58,3 | 219 | 125 | 240 | 22 | 8 | 39 |
Кран шаровой стандартнопроходной 289 комбинированный
Характеристики
Макс. температура (Т) °С.: до +200 °С
Мин. температура (Т) °С.: до -40 °С (исп. У), до -60 °С (исп. ХЛ)
Класс герметичности: Класс «А» ГОСТ 9544-2015
Срок службы: Не менее 25 лет
Гарантийный срок: 3 года или не менее 10 000 циклов
Материалы корпуса: Сталь 20/09Г2С/12Х18Н10Т
Тип присоединения:
фланцевый/приварной
Рабочая среда:
Теплосетевая вода, нефтепродукты, ГСМ и другие рабочие среды, неагрессивные для материалов деталей крана.
Модификации
| Артикул | DN | PN | L | L1 | H | H1 | S | D | D1 | D2 | D3 | D4 | n отв. | |
|---|---|---|---|---|---|---|---|---|---|---|---|---|---|---|
| 28920015 | 15 | 40 | 165 | 158,8 | 70 | 15,5 | 2,8 | 42 | 22 | 10 | 65 | 14 | 4 | |
| 28920020 | 20 | 40 | 175 | 158,8 | 72,6 | 18,1 | 2,8 | 42 | 27 | 15 | 75 | 14 | 4 | |
| 28920025 | 25 | 40 | 195 | 158,8 | 74,6 | 17,1 | 3,2 | 48 | 32 | 18 | 85 | 14 | 4 | |
| 28920032 | 32 | 40 | 205 | 158,8 | 79 | 17 | 3,2 | 57 | 42 | 24 | 100 | 18 | 4 | |
| 28920040 | 40 | 40 | 225 | 243 | 129 | 37,5 | 3,5 | 60 | 48 | 30 | 110 | 18 | 4 | |
| 28920050 | 50 | 40 | 250 | 243 | 137,5 | 38 | 3,5 | 76 | 57 | 40 | 125 | 18 | 4 | |
| 28920065 | 65 | 16 | 275 | 243 | 143,5 | 37,5 | 3,5 | 89 | 76 | 48 | 145 | 18 | 4 | |
| 28920080 | 80 | 16 | 280 | 277,6 | 174,5 | 56 | 4 | 114 | 89 | 63 | 160 | 18 | 4 | |
| 289200100 | 100 | 16 | 300 | 277,6 | 184,1 | 56,1 | 5 | 133 | 108 | 75 | 180 | 18 | 8 |
Кран шаровой полнопроходной 290 резьбовой
Характеристики
Макс. температура (Т) °С.: до +200 °С
Мин. температура (Т) °С.: до -40 °С (исп. У), до -60 °С (исп. ХЛ)
Класс герметичности: Класс «А» ГОСТ Р54808-2011
Срок службы: Не менее 25 лет
Гарантийный срок: 3 года или не менее 10 000 циклов
Материалы корпуса: Сталь 20/09Г2С/12Х18Н10Т
Тип присоединения:
резьбовой/резьбовой
Рабочая среда:
теплосетевая вода, нефтепродукты, ГСМ и другие рабочие среды, неагрессивные для материалов деталей крана.
Модификации
| Артикул | DN | PN | L | L1 | H | H1 | D | R | D2 | Вес | |
|---|---|---|---|---|---|---|---|---|---|---|---|
| 29020015 | 15 | 40 | 100 | 158,8 | 72,6 | 18,1 | 42 | 1/2 | 15 | 0,75 | |
| 29020020 | 20 | 40 | 100 | 158,8 | 74,6 | 17,1 | 48 | 3/4 | 18 | 1,02 | |
| 29020025 | 25 | 40 | 100 | 158,8 | 79 | 17 | 57 | 1 | 24 | 1,28 | |
| 29020032 | 32 | 40 | 120 | 243 | 129 | 37,5 | 60 | 1 1/4 | 30 | 1,73 | |
| 29020040 | 40 | 40 | 145 | 243 | 137,5 | 38 | 76 | 1 1/2 | 40 | 2,97 | |
| 29020050 | 50 | 40 | 190 | 243 | 143,5 | 37,5 | 89 | 2 | 48 | 4,73 | |
| 29020065 | 65 | 25 | 200 | 277,6 | 174,5 | 56 | 114 | 2 1/2 | 63 | 6,58 | |
| 29020080 | 80 | 25 | 240 | 277,6 | 184,1 | 56,1 | 133 | 3 | 75 | 12,83 | |
| 29020100 | 100 | 25 | 240 | 526 | 184,3 | 61,3 | 180 | 4 | 100 | 13,59 |
Кран шаровой полнопроходной 292 приварной
Характеристики
Макс. температура (Т) °С.: до +200 °С
Мин. температура (Т) °С.: до -40 °С (исп. У), до -60 °С (исп. ХЛ)
Класс герметичности: Класс «А» ГОСТ Р54808-2011
Срок службы: Не менее 25 лет
Гарантийный срок: 3 года или не менее 10 000 циклов
Материалы корпуса: Сталь 20/09Г2С/12Х18Н10Т
Проход: полный
Тип присоединения:
приварной/приварной
Рабочая среда:
Теплосетевая вода, нефтепродукты, ГСМ и другие рабочие среды, неагрессивные для материалов деталей крана
*Краны DN700 - 1400 изготавливаются под заказ. Информация по кранам DN700 - 1400 предоставляется по запросу
Модификации
| Артикул | DN | PN | L | L1 | H | H1 | D | D1 | D2 | S | Вес,кг | |
|---|---|---|---|---|---|---|---|---|---|---|---|---|
| 29220010 | 10 | 40 | 210 | 157,5 | 69 | 17,5 | 42 | 17 | 10 | 3 | 0,80 | |
| 29220015 | 15 | 40 | 210 | 158,8 | 72,6 | 18,1 | 42 | 22 | 15 | 2,8 | 0,76 | |
| 29220020 | 20 | 40 | 230 | 158,8 | 74,6 | 17,1 | 48 | 27 | 18 | 3,2 | 1,03 | |
| 29220025 | 25 | 40 | 230 | 158,8 | 79 | 17 | 57 | 32 | 24 | 3,2 | 1,21 | |
| 29220032 | 32 | 40 | 260 | 243 | 129 | 37,5 | 60 | 42 | 30 | 3,5 | 1,97 | |
| 29220040 | 40 | 40 | 260 | 243 | 137,5 | 38 | 76 | 48 | 40 | 3,5 | 2,36 | |
| 29220050 | 50 | 40 | 300 | 243 | 143,5 | 37,5 | 89 | 57 | 48 | 3,5 | 3,32 | |
| 29220065 | 65 | 25 | 360 | 277,6 | 174,5 | 56 | 114 | 76 | 63 | 4 | 5,29 | |
| 29220080 | 80 | 25 | 370 | 277,6 | 184,1 | 56,1 | 133 | 89 | 75 | 5 | 7,37 | |
| 29220100 | 100 | 25 | 330 | 526 | 184,3 | 56,3 | 180 | 108 | 100 | 5 | 13,49 | |
| 29220125 | 125 | 25 | 360 | 526 | 200,8 | 53,3 | 219 | 133 | 125 | 6 | 18,02 | |
| 29220150 | 150 | 25 | 390 | 526 | 221 | 46,5 | 273 | 159 | 148 | 6 | 23,85 | |
| 29220200 | 200 | 25 | 510 | 1019,5 | 275,6 | 61,8 | 351 | 219 | 200 | 8 | 57,42 | |
| 29220250 | 250 | 25 | 730 | - | 414 | 101 | 426 | 273 | 240 | 10 | 123,00 | |
| 29220300 | 300 | 16/25 | 730 | - | 464 | 101 | 530 | 325 | 300 | 10 | 235,00 | |
| 29220350 | 350 | 16/25 | 970 | - | 661 | 103 | 630 | 377 | 390 | 10 | 376,00 | |
| 29220400 | 400 | 16/25 | 970 | - | 560 | 103 | 630 | 426 | 390 | 10 | 454,00 | |
| 29220500 | 500 | 16/25 | 991 | - | 664 | 104 | 820 | 530 | 500 | 10 | 827,5 | |
| 29220700 | 700* | 16/25 | 1150 | - | - | 88 | 970 | 720 | 600 | 13 | 1182 | |
| 29220800 | 800* | 16/25 | 1346 | - | - | 132 | 1120 | 820 | 700 | 13 | 2595 | |
| 292201000 | 1000* | 16/25 | 1524 | - | - | 82 | 1220 | 1020 | 780 | 15 | 2795 | |
| 292201200 | 1200* | 16/25 | 1650 | - | - | 82 | 1420 | 1220 | 1000 | 15 | 3852 |
Кран шаровой полнопроходной 292 с фланцем для установки привода
Характеристики
Макс. температура (Т) °С.: до +200 °С
Мин. температура (Т) °С.: до -40 °С (исп. У), до -60 °С (исп. ХЛ)
Класс герметичности: Класс «А» ГОСТ Р54808-2011
Срок службы: Не менее 25 лет
Гарантийный срок: 3 года или не менее 10 000 циклов
Материалы корпуса: Сталь 20/09Г2С/12Х18Н10Т
Тип присоединения:
приварной/приварной
Рабочая среда:
Теплосетевая вода, нефтепродукты, ГСМ и другие рабочие среды, неагрессивные для материалов деталей крана
*Краны DN700 - 1400 изготавливаются под заказ. Информация по кранам DN700 - 1400 предоставляется по запросу.
Модификации
| Артикул | DN | PN | L | L1 | H | H1 | D | D1 | D2 | S | Вес | |
|---|---|---|---|---|---|---|---|---|---|---|---|---|
| 29220100 | 100 | 25 | 330 | 525 | 187 | 50 | 180 | 108 | 100 | 5 | 14,30 | |
| 29220125 | 125 | 25 | 360 | 525 | 203 | 47 | 219 | 133 | 125 | 5 | 18,75 | |
| 29220150 | 150 | 25 | 390 | 525 | 228 | 45 | 273 | 159 | 148 | 6 | 25,00 | |
| 29220200 | 200 | 25 | 510 | 1030 | 273 | 51 | 351 | 219 | 200 | 8 | 58,25 | |
| 29220250 | 250 | 25 | 730 | - | 414 | 101 | 426 | 273 | 240 | 10 | 123,00 | |
| 29220300 | 300 | 16/25 | 730 | - | 464 | 101 | 530 | 325 | 300 | 10 | 235,00 | |
| 29220400 | 400 | 16/25 | 970 | - | 560 | 103 | 630 | 426 | 390 | 10 | 454,00 | |
| 29220500 | 500 | 16/25 | 991 | - | 664 | 122 | 820 | 530 | 500 | - | 827,5 | |
| 29220700 | 700* | 16/25 | 1150 | - | - | 88 | 970 | 720 | 600 | 13 | ||
| 29220800 | 800* | 16/25 | 1346 | - | - | 132 | 1120 | 820 | 700 | 13 | ||
| 292201000 | 1000* | 16/25 | 1524 | - | - | 82 | 1220 | 1020 | 780 | 15 | ||
| 292201200 | 1200* | 16/25 | 1650 | - | - | 82 | 1420 | 1220 | 1000 | 15 |
Кран шаровой полнопроходной 293 фланцевый
Характеристики
Макс. температура (Т) °С.: до +200 °С
Мин. температура (Т) °С.: до -40 °С (исп. У), до -60 °С (исп. ХЛ)
Класс герметичности: Класс «А» ГОСТ Р54808-2011
Срок службы: Не менее 25 лет
Гарантийный срок: 3 года или не менее 10 000 циклов
Материалы корпуса: Сталь 20/09Г2С/12Х18Н10Т
Тип присоединения:
фланцевый/фланцевый
Рабочая среда:
теплосетевая вода, нефтепродукты, ГСМ и другие рабочие среды, неагрессивные для материалов деталей крана
Модификации
| Артикул | DN | PN | L | L1 | H | H1 | D | D2 | D3 | D4 | n oтв. | Вес, кг | |
|---|---|---|---|---|---|---|---|---|---|---|---|---|---|
| 29320015 | 15 | 40 | 130 | 158,8 | 72,6 | 18,1 | 42 | 15 | 65 | 14 | 4 | 1,78 | |
| 29320020 | 20 | 40 | 150 | 158,8 | 74,6 | 17,1 | 48 | 18 | 75 | 14 | 4 | 2,23 | |
| 29320025 | 25 | 40 | 160 | 158,8 | 79 | 17 | 57 | 24 | 85 | 14 | 4 | 2,75 | |
| 29320032 | 32 | 40 | 180 | 243 | 129 | 37,5 | 60 | 30 | 100 | 18 | 4 | 4,14 | |
| 29320040 | 40 | 40 | 200 | 243 | 137,5 | 38 | 76 | 40 | 110 | 18 | 4 | 4,95 | |
| 29320050 | 50 | 40 | 250 | 243 | 143,5 | 37,5 | 89 | 48 | 125 | 18 | 4 | 6,87 | |
| 29320065 | 65 | 16 | 270 | 277,6 | 174,5 | 56 | 114 | 63 | 145 | 18 | 4 | 9,85 | |
| 29320080 | 80 | 16 | 290 | 277,6 | 184,1 | 56,1 | 133 | 75 | 160 | 18 | 4 | 12,54 | |
| 29320100 | 100 | 16 | 350 | 526 | 184,3 | 56,3 | 180 | 100 | 180 | 18 | 8 | 21,28 | |
| 29320125iso | 125 | 16 | 380 | 526 | 200,8 | 53,3 | 219 | 125 | 210 | 18 | 8 | 28,67 | |
| 29320150iso | 150 | 16 | 410 | 526 | 221 | 46,5 | 273 | 148 | 240 | 22 | 8 | 36,31 | |
| 29320200iso | 200 | 16 | 530 | 1019,5 | 273 | 51 | 351 | 200 | 295 | 22 | 12 | 76,75 | |
| 29320250iso | 250 | 16 | 750 | - | 414 | 101 | 426 | 240 | 355 | 26 | 12 | 145,00 | |
| 29320300iso | 300 | 16 | 750 | - | 464 | 100 | 530 | 300 | 410 | 26 | 12 | 270,00 | |
| 29320350iso | 350 | 16 | 990 | - | 561 | 103 | 630 | 390 | 470 | 26 | 16 | 422,00 | |
| 29320400iso | 400 | 16 | 990 | - | 560 | 103 | 630 | 390 | 525 | 30 | 16 | 615,00 | |
| 29320500iso | 500 | 16 | 1017 | - | 664 | 104 | 820 | 500 | 650 | 33 | 20 | 940,50 |
Кран шаровой полнопроходной 293 с фланцем для установки привода
Характеристики
Макс. температура (Т) °С.: до +200 °С
Мин. температура (Т) °С.: до -40 °С (исп. У), до -60 °С (исп. ХЛ)
Класс герметичности: Класс «А» ГОСТ 9544-2015
Срок службы: Не менее 25 лет
Гарантийный срок: 3 года или не менее 10 000 циклов
Материалы корпуса: Сталь 20/09Г2С/12Х18Н10Т
Тип присоединения:
фланцевый/фланцевый
Рабочая среда:
теплосетевая вода, нефтепродукты, ГСМ и другие рабочие среды, неагрессивные для материалов деталей крана
Модификации
| Артикул | DN | PN | L | L1 | H | H1 | D | D2 | D3 | D4 | n отв. | Вес.кг | |
|---|---|---|---|---|---|---|---|---|---|---|---|---|---|
| 29320125iso | 125 | 16 | 380 | 526 | 200,8 | 53,3 | 219 | 125 | 210 | 18 | 8 | 28,67 | |
| 29320150iso | 150 | 16 | 410 | 526 | 221 | 46,5 | 273 | 148 | 240 | 22 | 8 | 36,31 | |
| 29320200iso | 200 | 16 | 530 | 1019,5 | 273 | 51 | 351 | 200 | 295 | 22 | 12 | 76,75 | |
| 29320250iso | 250 | 16 | 750 | - | 414 | 101 | 426 | 240 | 355 | 26 | 12 | 145,00 | |
| 29320300iso | 300 | 16 | 750 | - | 464 | 100 | 530 | 300 | 410 | 26 | 12 | 270,00 | |
| 29320400iso | 400 | 16 | 990 | - | 560 | 103 | 630 | 390 | 525 | 30 | 16 | 615,00 | |
| 29320500iso | 500 | 16 | 1017 | - | 664 | 104 | 820 | 500 | 650 | 33 | 20 | 940,50 |
Кран шаровой полнопроходной 294 фланцевый PN25
Характеристики
Макс. температура (Т) °С.: до +200 °С
Мин. температура (Т) °С.: до -40 °С (исп. У), до -60 °С (исп. ХЛ)
Класс герметичности: Класс «А» ГОСТ 9544-2015
Срок службы: Не менее 25 лет
Гарантийный срок: 3 года или не менее 10 000 циклов
Материалы корпуса: Сталь 20/09Г2С/12Х18Н10Т
Тип присоединения:
фланцевое (PN 25)/ фланцевое (PN 25)
Рабочая среда:
теплосетевая вода, нефтепродукты, ГСМ и другие рабочие среды, неагрессивные для материалов деталей крана.
Модификации
| Артикул | DN | PN | L | L1 | H | H1 | D | D2 | D3 | D4 | n oтв. | Вес, кг | |
|---|---|---|---|---|---|---|---|---|---|---|---|---|---|
| 29420065 | 65 | 25 | 270 | 277,6 | 174,5 | 56 | 114 | 63 | 145 | 18 | 8 | 9,85 | |
| 29420080 | 80 | 25 | 290 | 277,6 | 184,1 | 56,1 | 133 | 75 | 160 | 18 | 8 | 12,54 | |
| 29420100 | 100 | 25 | 350 | 526 | 184,3 | 56,3 | 180 | 100 | 190 | 22 | 8 | 23,48 | |
| 29420125iso | 125 | 25 | 380 | 526 | 200,8 | 53,3 | 219 | 125 | 220 | 26 | 8 | 33,67 | |
| 29420150iso | 150 | 25 | 410 | 526 | 221 | 46,5 | 273 | 148 | 250 | 26 | 8 | 49,31 | |
| 29420200iso | 200 | 25 | 530 | 1019,5 | 273 | 51 | 351 | 200 | 310 | 26 | 12 | 92,54 | |
| 29420250iso | 250 | 25 | 750 | - | 414 | 101 | 426 | 240 | 370 | 30 | 12 | 147,00 | |
| 29420300iso | 300 | 25 | 750 | - | 464 | 100 | 530 | 300 | 430 | 30 | 16 | 272,00 | |
| 29420350iso | 350 | 25 | 990 | - | 561 | 103 | 630 | 390 | 790 | 33 | 16 | 449,00 | |
| 29420400iso | 400 | 25 | 990 | - | 560 | 103 | 630 | 390 | 550 | 33 | 16 | 617,00 | |
| 29420500iso | 500 | 25 | 1017 | - | 664 | 104 | 820 | 500 | 660 | 39 | 20 | 962,00 |
Кран шаровой полнопроходной 294 с фланцем для установки привода
Характеристики
Макс. температура (Т) °С.: до +200 °С
Мин. температура (Т) °С.: до -40 °С (исп. У), до -60 °С (исп. ХЛ)
Класс герметичности: Класс «А» ГОСТ 9544-2015
Срок службы: Не менее 25 лет*
Гарантийный срок: 3 года или не менее 10 000 циклов
Материалы корпуса: Сталь 20/09Г2С/12Х18Н10Т
Тип присоединения:
фланцевое (PN 25)/ фланцевое (PN 25)
Рабочая среда:
теплосетевая вода, нефтепродукты, ГСМ и другие рабочие среды, неагрессивные для материалов деталей крана.
Модификации
| Артикул | DN | PN | L | L1 | H | H1 | D | D2 | D3 | D4 | n отв. | Вес,кг | |
|---|---|---|---|---|---|---|---|---|---|---|---|---|---|
| 29420125iso | 125 | 25 | 380 | 526 | 200,8 | 53,3 | 219 | 125 | 220 | 26 | 8 | 33,67 | |
| 29420150iso | 150 | 25 | 410 | 526 | 221 | 46,5 | 273 | 148 | 250 | 26 | 8 | 49,31 | |
| 29420200iso | 200 | 25 | 530 | 1019,5 | 273 | 51 | 351 | 200 | 310 | 26 | 12 | 92,54 | |
| 29420250iso | 250 | 25 | 750 | - | 414 | 101 | 426 | 240 | 370 | 30 | 12 | 147,0 | |
| 29420300iso | 300 | 25 | 750 | - | 464 | 100 | 530 | 300 | 430 | 30 | 16 | 272,0 | |
| 29420400iso | 400 | 25 | 990 | - | 560 | 103 | 630 | 390 | 550 | 33 | 16 | 617,0 | |
| 29420500iso | 500 | 25 | 1017 | - | 664 | 104 | 820 | 500 | 660 | 39 | 20 | 962,0 |
Кран шаровой стандартнопроходной 482 с удлиненным штоком для бесканальной прокладки
Характеристики
Макс. температура (Т) °С.: до +200 °С
Мин. температура (Т) °С.: (Т): до -40 °С (исп. У), до -60 °С (исп. ХЛ)
Класс герметичности: Класс «А» ГОСТ Р54808-2011
Срок службы: Не менее 25 лет
Гарантийный срок: 3 года или не менее 10 000 циклов
Материалы корпуса: Сталь 20/09Г2С/12Х18Н10Т
Тип присоединения:
приварной/приварной
Рабочая среда:
теплосетевая вода, нефтепродукты, ГСМ и другие рабочие среды, неагрессивные для материалов деталей крана.
Модификации
| Артикул | DN | PN | L | D | D1 | H | Вес в кг. | Вес штока, 100мм.кг. | |
|---|---|---|---|---|---|---|---|---|---|
| 48220025 | 25 | 40 | 230 | 48 | 32 | 300 | 3,25 | 0,68 | |
| 48220032 | 32 | 40 | 230 | 57 | 42 | 300 | 3,15 | 0,68 | |
| 48220040 | 40 | 40 | 250 | 76 | 48 | 300 | 3,5 | 0,68 | |
| 48220050 | 50 | 40 | 270 | 89 | 57 | 300 | 4,25 | 0,68 | |
| 48220065 | 65 | 25 | 280 | 108 | 76 | 300 | 5,00 | 0,68 | |
| 48220080 | 80 | 25 | 280 | 133 | 89 | 300 | 7,55 | 0,85 | |
| 48220100 | 100 | 25 | 300 | 159 | 108 | 300 | 9,40 | 0,85 | |
| 48220125 | 125 | 25 | 330 | 180 | 133 | 300 | 19,20 | 0,96 | |
| 48220150 | 150 | 25 | 360 | 219 | 159 | 300 | 25,81 | 0,96 | |
| 48220200 | 200 | 25 | 430 | 273 | 219 | 300 | 38,51 | 0,96 | |
| 48220250 | 250 | 25 | 510 | 351 | 273 | 300 | 64,35 | 1,61 | |
| 48220300 | 300 | 16/25 | 730 | 426 | 325 | 300 | по запросу | - | |
| 48220400 | 400 | 16/25 | 860 | 530 | 406,4 | 300 | по запросу | - | |
| 48220500 | 500 | 16/25 | 970 | 630 | 530 | 300 | по запросу | - | |
| 48220600 | 600 | 16/25 | 1143 | 820 | 630 | 300 | по запросу | - |
Кран шаровой полнопроходной 492 с удлиненным штоком для бесканальной прокладки
Характеристики
Макс. температура (Т) °С.: до +200 °С
Мин. температура (Т) °С.: до -40 °С (исп. У), до -60 °С (исп. ХЛ)
Класс герметичности: Класс «А» ГОСТ Р54808-2011
Срок службы: Не менее 25 лет.
Гарантийный срок: 3 года или не менее 10 000 циклов
Материалы корпуса: Сталь 20/09Г2С/12Х18Н10Т
Тип присоединения:
приварной/приварной
Рабочая среда:
теплосетевая вода, нефтепродукты, ГСМ и другие рабочие среды, неагрессивные для материалов деталей крана.
Модификации
| Артикул | DN | PN | L | D | D1 | H | Вес, кг. | Вес штока,100мм. кг. | |
|---|---|---|---|---|---|---|---|---|---|
| 49220025 | 25 | 40 | 230 | 57 | 32 | 300 | 3,40 | 0,68 | |
| 49220032 | 32 | 40 | 260 | 76 | 42 | 300 | 3,80 | 0,68 | |
| 49220040 | 40 | 40 | 260 | 89 | 48 | 300 | 4,10 | 0,68 | |
| 49220050 | 50 | 40 | 300 | 108 | 57 | 300 | 3,90 | 0,68 | |
| 49220065 | 65 | 25 | 360 | 133 | 76 | 300 | 6,95 | 0,85 | |
| 49220080 | 80 | 25 | 370 | 159 | 89 | 300 | 10,35 | 0,85 | |
| 49220100 | 100 | 25 | 330 | 180 | 108 | 300 | 15,70 | 0,96 | |
| 49220125 | 125 | 25 | 360 | 180 | 133 | 300 | 22,95 | 0,96 | |
| 49220150 | 150 | 25 | 390 | 219 | 159 | 300 | 30,29 | 0,96 | |
| 49220200 | 200 | 25 | 510 | 273 | 219 | 300 | 57,91 | 1,61 | |
| 49220250 | 250 | 16/25 | 730 | 426 | 273 | 300 | по запросу | - | |
| 49220300 | 300 | 16/25 | 730 | 530 | 323,9 | 300 | по запросу | - | |
| 49220400 | 400 | 16/25 | 970 | 630 | 406,4 | 300 | по запросу | - | |
| 49220500 | 500 | 16/25 | 991 | 820 | 530 | 300 | по запросу | - |
Кран шаровой регулирующий 682 приварной
Характеристики
Тип присоединения:
приварной/приварной
Регулирующие шаровые краны TEMPER предназначены для регулирования (балансирования) потока рабочей среды в системах теплоснабжения, хладоснабжения и вентиляционных систем. Шар имеет специальное проходное сечение, а кран оснащен шкалой со значениями. Регулирование осуществляется поворотом рукоятки с указателем. Выбранное положение рукоятки фиксируется с помощью болта и гайки-бабочки.
Два варианта исполнения:
1) С измерительными ниппелями (см. рисунок ниже).Измерение расхода и перепада давления в системе возможно с помощью расходомера.
2) Без измерительных ниппелей. Настройка расхода осуществляется только при помощи рукоятки с указателем.
Модификации
| Артикул | DN | PN | L | L1 | L2 | H | H1 | H2 | D | D1 | D2 | S | Вес без нипп | Вес с нипп | |
|---|---|---|---|---|---|---|---|---|---|---|---|---|---|---|---|
| 68220020 | 20 | 40 | 200 | 154,8 | 65 | 72,6 | 13,6 | 52,4 | 42 | 27 | 15 | 2,8 | 0,91 | 1,01 | |
| 68220025 | 25 | 40 | 230 | 154,8 | 65 | 74,6 | 12,6 | 55,8 | 48 | 32 | 18 | 3,2 | 1,21 | 1,3 | |
| 68220032 | 32 | 40 | 230 | 154,8 | 80 | 79 | 12,5 | 12,5 | 57 | 42 | 24 | 3,2 | 1,5 | 1,59 | |
| 68220040 | 40 | 40 | 250 | 248 | 90 | 128,5 | 31,5 | 31,5 | 60 | 48 | 30 | 3,5 | 2,23 | 2,32 | |
| 68220050 | 50 | 40 | 270 | 248 | 110 | 130 | 25 | 67,5 | 76 | 57 | 40 | 3,5 | 2,6 | 2,69 | |
| 68220065 | 65 | 25 | 280 | 248 | 120 | 134,5 | 23 | 77 | 89 | 76 | 48 | 3,5 | 3,45 | 3,54 | |
| 68220080 | 80 | 25 | 280 | 274,7 | 115 | 163 | 37,5 | 118,5 | 114 | 89 | 63 | 4 | 4,91 | 5,11 | |
| 68220100 | 100 | 25 | 300 | 274,7 | 125 | 170 | 35 | 128 | 133 | 108 | 75 | 5 | 6,69 | 6,88 | |
| 68220125 | 125 | 25 | 330 | 526 | 135 | 184 | 56,05 | 140,5 | 180 | 133 | 100 | 5 | 13,79 | 13,98 | |
| 68220150 | 150 | 25 | 360 | 526 | 150 | 195,5 | 48 | 153,5 | 219 | 159 | 125 | 6 | 18,92 | 19,11 | |
| 68220200 | 200 | 25 | 430 | 526 | 185 | 221 | 46,5 | 183,5 | 273 | 219 | 148 | 8 | 33,27 | 33,45 | |
| 68220250 | 250 | 25 | 510 | - | - | 329 | 61,8 | - | 351 | 273 | 200 | 8 | 71,22 | - | |
| 68220300 | 300 | 25 | 730 | - | - | 414 | 101 | - | 426 | 325 | 240 | 10 | 122,65 | - |
Кран шаровой регулирующий 683 фланцевый
Характеристики
Тип присоединения:
фланцевый/фланцевый
Регулирующие шаровые краны TEMPER предназначены для регулирования (балансирования) потока рабочей среды в системах теплоснабжения, хладоснабжения и вентиляционных систем. Шар имеет специальное проходное сечение, а кран оснащен шкалой со значениями. Регулирование осуществляется поворотом рукоятки с указателем. Выбранное положение рукоятки фиксируется с помощью болта и гайки-бабочки.
Два варианта исполнения:
1) С измерительными ниппелями (см. рисунок ниже).Измерение расхода и перепада давления в системе возможно с помощью расходомера.
2) Без измерительных ниппелей. Настройка расхода осуществляется только при помощи рукоятки с указателем.
Модификации
| Артикул | DN | PN | L | L1 | L2 | H | H1 | H2 | D3 | D4 | n отв. | Вес без нипп | Вес с нипп | |
|---|---|---|---|---|---|---|---|---|---|---|---|---|---|---|
| 68320020 | 20 | 40 | 240 | 154,8 | 65 | 74,6 | 15,6 | 52,4 | 75 | 14 | 4 | 2,43 | 2,53 | |
| 68320025 | 25 | 40 | 240 | 154,8 | 65 | 74,6 | 12,6 | 55,75 | 85 | 14 | 4 | 2,96 | 3,06 | |
| 68320032 | 32 | 40 | 270 | 154,8 | 80 | 79 | 12,5 | 60,15 | 100 | 18 | 4 | 4,13 | 4,22 | |
| 68320040 | 40 | 40 | 200 | 248 | 65 | 129 | 31,5 | 63 | 110 | 18 | 4 | 4,9 | 4,99 | |
| 68320050 | 50 | 40 | 230 | 248 | 70 | 130 | 25 | 67,5 | 125 | 18 | 4 | 6,26 | 6,35 | |
| 68320065 | 65 | 16 | 270 | 248 | 85 | 134,8 | 23 | 77 | 145 | 18 | 4 | 8,61 | 8,7 | |
| 68320080 | 80 | 16 | 280 | 274,7 | 95 | 163 | 37,5 | 118,5 | 160 | 18 | 4 | 11,01 | 11,2 | |
| 68320100 | 100 | 16 | 300 | 274,7 | 105 | 170 | 35 | 128 | 180 | 18 | 8 | 14,22 | 14,41 | |
| 68320125 | 125 | 16 | 350 | 526 | 130 | 184 | 56,05 | 140,5 | 210 | 18 | 8 | 24,44 | 24,63 | |
| 68320150 | 150 | 16 | 380 | 526 | 145 | 195,5 | 48 | 153,5 | 240 | 22 | 8 | 31,39 | 31,57 | |
| 68320200 | 200 | 16 | 450 | 526 | - | 221 | 46,5 | - | 295 | 22 | 12 | 53,37 | 53,55 | |
| 68320250 | 250 | 16 | 530 | - | - | 329 | 61,8 | - | 355 | 26 | 12 | 100,03 | - | |
| 68320300 | 300 | 16 | 750 | - | - | 414 | 101 | - | 410 | 26 | 12 | 161 | - |
262 ответвительный кран приварной (разделительный клапан)
Характеристики
Макс. температура (Т) °С.: до +200 °С
Мин. температура (Т) °С.: до -40 °С (исп. У), до -60 °С (исп. ХЛ)
Класс герметичности: Класс «А» ГОСТ Р54808-2011
Срок службы: Не менее 25 лет
Гарантийный срок: 3 года или не менее 10 000 циклов
Проход: редуцированный
Используется в конструкциях трубопроводов с предизоляцией.
Для подготовки к будущим подключениям на этапе монтажа трубопровода.
Для врезки под давлением используется кран 272 серии.
Тип присоединения:
приварной/приварной
Рабочая среда:
Сети централизованного теплоснабжения, нефтепродукты, горючие и смазочные материалы,
другие жидкости, свободные от абразивных загрязнений.
Модификации
| Артикул | DN | PN | L | H | H1 | D | D1 | D2 | S | HEX | HEX1 | |
|---|---|---|---|---|---|---|---|---|---|---|---|---|
| 26220025 | 25 | 40 | 232 | 41 | 14 | 18 | 33,7 | 48 | 2,6 | 9 | 22 | |
| 26220032 | 32 | 40 | 260 | 44,5 | 13 | 24 | 42,4 | 57 | 2,6 | 9 | 22 | |
| 26220040 | 40 | 40 | 260 | 51 | 10 | 30 | 48,3 | 76 | 2,6 | 10 | 27 | |
| 26220050 | 50 | 40 | 300 | 60,5 | 13 | 40 | 60,3 | 89 | 2,9 | 10 | 27 | |
| 26220065 | 65 | 25 | 300 | 67 | 10 | 48 | 76,1 | 108 | 2,9 | 10 | 27 | |
| 26220080 | 80 | 25 | 300 | 85,5 | 14 | 66 | 88,9 | 133 | 3,2 | 15 | 32 | |
| 26220100 | 100 | 25 | 325 | 94,5 | 10 | 78 | 114,3 | 159 | 3,6 | 15 | 32 | |
| 26220125 | 125 | 25 | 325 | 122,5 | 22,5 | 100 | 139,7 | 180 | 4,0 | 19 | 41 | |
| 262 20 150 | 150 | 25 | 350 | 140 | 23 | 125 | 168,3 | 219 | 4,5 | 19 | 41 |
272 врезка под давлением (кран шаровой горячего отвода) приварной
Характеристики
Проход: полный
Присоединение: приварное
Кран шаровой полнопроходной 272 (горячего отвода) приварной
Тип присоединения:
приварной
Рабочая среда:
Сети централизованного теплоснабжения, нефтепродукты, горючие и смазочные материалы,
другие жидкости, свободные от абразивных загрязнений.
Модификации
| Артикул | DN | PN | L | H | H1 | D | D1 | D2 | D3 | S | S1 | HEX | HEX1 | |
|---|---|---|---|---|---|---|---|---|---|---|---|---|---|---|
| 27220025 | 25 | 40 | 209 | 44,5 | 13 | 26 | 33,7 | 57 | 36,5 | 2,6 | 4,25 | 9 | 22 | |
| 27220032 | 32 | 40 | 207 | 51 | 10 | 32 | 42,4 | 76 | 46,2 | 2,6 | 4,5 | 10 | 27 | |
| 27220040 | 40 | 40 | 228 | 60,5 | 13 | 40 | 48,3 | 89 | 52,1 | 2,6 | 4,5 | 10 | 27 | |
| 27220050 | 50 | 40 | 262 | 67 | 10 | 50 | 60,3 | 108 | 64,5 | 2,9 | 5 | 10 | 27 | |
| 27220065 | 65 | 25 | 280 | 85 | 14 | 66 | 76,1 | 133 | 80,3 | 2,9 | 5 | 15 | 32 | |
| 27220080 | 80 | 25 | 312 | 95 | 10 | 78 | 88,9 | 159 | 94,5 | 3,2 | 6 | 15 | 32 | |
| 27220100 | 100 | 25 | 352 | 122,5 | 25,5 | 100 | 114,3 | 180 | 122,1 | 3,6 | 7,5 | 19 | 41 | |
| 27220125 | 125 | 25 | 365 | 139,5 | 23 | 125 | 139,7 | 219 | 151,7 | 5,6 | 10 | 19 | 41 | |
| 272 20 150 | 150 | 25 | 365 | 139,5 | 23 | 125 | 168,3 | 219 | 151,7 | 4,5 | 10 | 19 | 41 |